빛그린국가산업단지 내 7만4000㎡에 수소 융·복합 산업특화단지 조성
[인더스트리뉴스 최홍식 기자] 광주광역시는 수소산업의 메카로 자리매김하기 위해 수소 관련 산업 추진에 박차를 가하고 있다고 14일 밝혔다. 먼저, 2014년부터 올해 말까지 수소차 207대를 보급하고, 전국에서 두번째로 많은 수소 충전소를 운영하는 등 타 시도보다 앞선 수소 인프라를 강점으로 내세워 수소 관련 국비사업 유치에 주력할 계획이다.
현재 광주광역시에는 2기의 수소충전소가 운영되고 있으며, 2기는 공사 진행중이다. 광주광역시는 특히, 수소산업 제품안전성지원센터 유치를 위한 공모에 행정력을 결집해 수소 관련 기업의 광주 유치와 미래 먹거리 산업 발굴, 광주형 일자리 창출을 실현한다는 계획이다.
![광주시가 수소산업 메카로 자리매김하기 위해 추진하는 수소융복합산업단지 예상 계획 안 [자료=광주광역시]](https://cdn.industrynews.co.kr/news/photo/201811/27835_19546_2258.jpg)
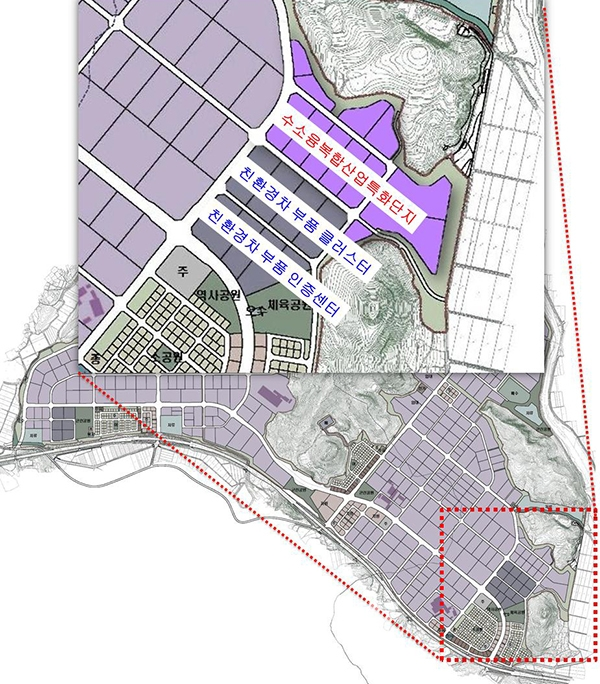
올해부터 2025년까지 자동차전용산단인 빛그린국가산업단지 내 들어서는 수소 융·복합 산업특화단지 조성에도 가속도를 낸다. 수소 융·복합 산업특화단지에는 수소산업 전주기 제품안전성 지원센터, 수소생산기술인증센터, 공동연구캠퍼스, 수소생산플랜트, 신재생에너지실증단지, 수소에너지체험관을 국시비 사업으로 단계적으로 확대 조성할 계획이다.
이들 특화산업이 유치되면 수소 생산과 산학연 연계 수소에너지 기술개발에서부터 수소 제품의 시험평가, 수소생산기술 인증, 수소산업 관련 제품 전시까지 수소 산업 생태계를 구축하게 돼 수소산업 선도도시로서 위상은 물론, 전후방 수소산업 기반을 통해 연관 산업이 광주를 중심으로 발전할 것으로 전망된다.
이와 함께 현재 빛그린국가산업단지에 구축중인 친환경차 부품 클러스터, 친환경차 부품 인증센터와도 연계해 광주시 미래 먹거리 산업으로 육성한다는 계획이다. 그동안 광주시는 수소산업 허브도시 조성을 위한 사업의 일환으로 2016년 수소자동차허브도시 조성을 위한 로드맵을 기획하고 수소차 보급, 수소충전인프라 구축을 통해 수소 관련 산업 기반을 다져왔다.
수소충전소는 국산화율이 낮아 구축 비용이 많이 투입되는 등 충전인프라 구축에 어려움이 많은 것에 착안해 수소 부품의 국산화 개발을 위해 2016년부터 ‘수소차·전기차 융합스테이션 국산화 기술개발 및 실증’ 사업을 추진 중이다. 이 사업을 통해 수소충전소 부품의 국산화에 기여할 것으로 기대된다.
- 물로 수소 만드는 고효율 ‘그래핀 촉매’ 개발
- 창원시, ‘수소산업 전주기 제품 안전성 지원센터’ 유치 총력
- 인천시 전기차&수소차 보급 대폭 확대한다
- 2040년까지 재생에너지 비중 25~40%로 확대한다
- 2022년까지 친환경 수소차 2,100대 보급하는 경상남도
- 산업부, 2019년 6개 도시에 수소버스 30대 투입 예정
- 대전시, 수소산업 전주기 제품 안전성 지원센터 유치
- 경상남도, 수소버스 시범도시 업무협약 체결
- 광주시, 수소버스 활성화 위해 수소충전 인프라 확대 보급 추진
- 수소차 충전시설 복합설치 허용, 인프라 확대 기대
- 이종배 의원, 불필요한 수소차 규체 혁파 위해 국회 수소충전소 설치 제안
